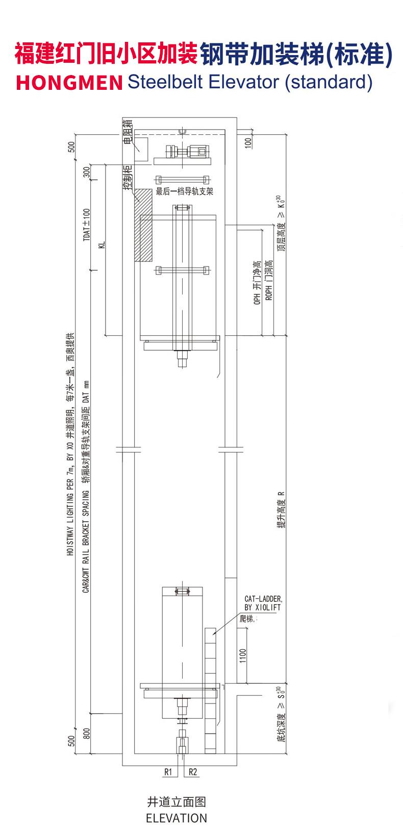
额定荷载:500KG 适合场合:旧小区 最大层数:7层 产品描述:168网直播澳洲幸运5开奖结果体彩所研发的旧小区加装电梯项目采用的是HM-JZ01系列钢带加装梯,更安全更省心……...
旧小区加装电梯
PRODUCT SHOW